
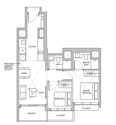
Lentoria | 2 Bedroom | 732 SQFT
S$1,830,000.00
Bathrooms: 2
Unit Size: 732 SQFT
Floor Level: 17
Furnishing: Partial
Status: Building Under Construction (2027)
About Lentoria
- Address: 32, 36, 38 Lentor Hills Road
- Developer: TID Pte Ltd (Hong Leong Group and Mitsui Fudosan)
- Total Units: 267
- Tenure: 99 years from 19 December 2022
- Site Area: 10,819sqm/116,456sqft
- Estimated TOP Date: 2 July 2027
- Number of Blocks: 3
- Carpark Lots: 227 (Inclusive of 3 EV Charging Stations)
- Primary Schools Within 1 KM: Anderson Primary School, CHIJ St Nicholas Girls School
- Facilities: Dog Run, 50M Lap Pool, Sky Terraces with Sky Jacuzzi
- Highlights: Lowest Density Development in Lentor
Envisioned as modern tropical residences, Lentoria is home to 267 premium units set amidst green serenity and curated facilities. The beauty of nature and the tranquility of a hillside park seamlessly integrate with the landscaped homes of Lentoria to pamper the body, heart and mind.
The pristine and untouched Upper Peirce Reservoir with its nature reserve becomes the inspiration for Lentoria’s landscaping, where pools and water features weave and connect the residential towers, facilities and garden park spaces together.
Endowed with a prime location in Lentor, a leisurely 5-minute stroll takes you to the nearby mall and Lentor MRT station. A short drive to the Central Expressway gets you anywhere you want to be across the island. For families with school-going children, the renowned CHIJ St. Nicholas Girls' School and Anderson Primary School are within a 1km hop and skip away.
*Unit is subjected to latest availability upon request






